SIGN UP CUSTOMER LOGIN
Main Photo

7 Total Photos [Click to View All]

Main Photo
Main Photo

1118 W Fullerton Avenue , Unit 201 Chicago, IL 60614

$8,500.00 / Monthly
Active / MLS# 12576711 / Rental - Single Family / Chicago
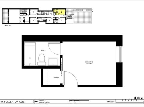
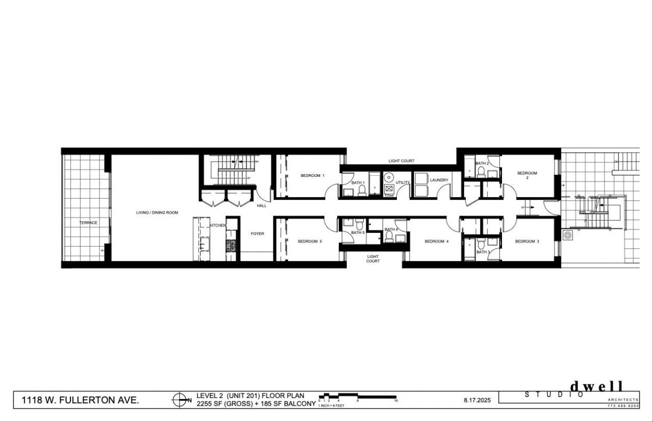
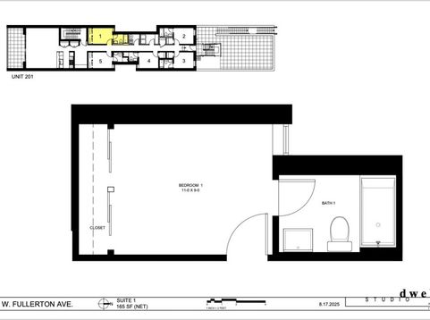
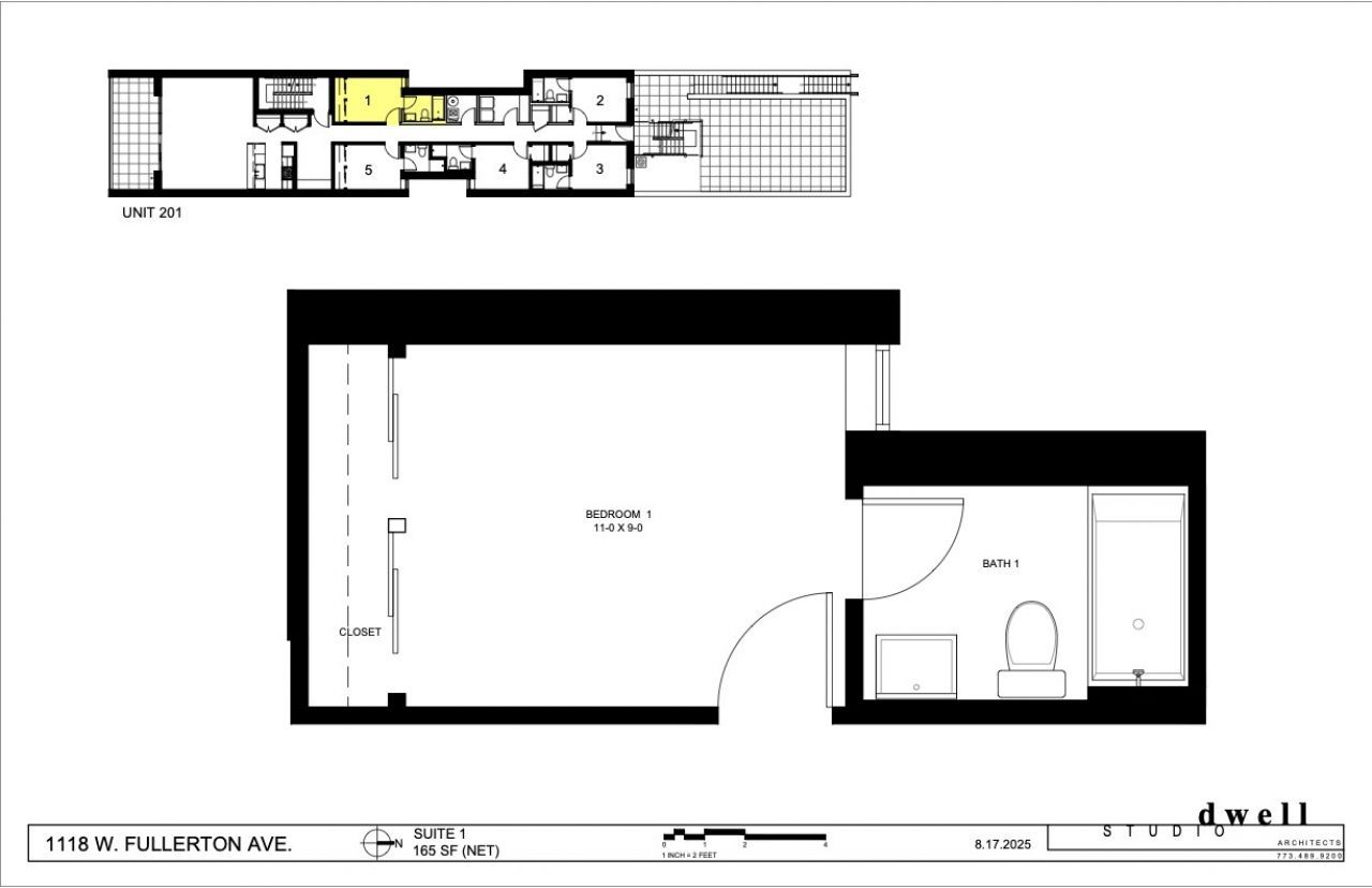
5 Beds
5 Baths
2440 SqFt

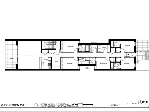
Welcome to 1118 Fullerton, a stunning new-construction residence in the heart of Chicago's vibrant Lincoln Park neighborhood. This expansive 5-bedroom, 5-bathroom apartment offers the perfect blend of modern luxury, thoughtful design, and unbeatable location. Designed for both comfort and style, the open-concept floor plan, oversized windows with abundant natural light, and hardwood flooring throughout. The kitchen complete with quartz countertops, premium stainless-steel appliances, and a large island ideal for entertaining. The unit includes 2 washers and 2 dryers. Every bedroom includes a spacious closet, a private en-suite bathroom, and a digital lock for added security and privacy. An additional highlight is a private outdoor balcony. Perfectly situated near DePaul University, shopping, dining, parks, and public transportation, 1118 Fullerton offers elevated city living in one of Chicago's most desirable neighborhoods. Residents have the flexibility to choose the living arrangement that best suits their needs-either rent the entire apartment for private use or select a co-living option and enjoy a private bedroom with shared common spaces. Pets ok with renting the entire apartment. Co-living residences feature beautifully designed, furnished modern common areas that create a welcoming and stylish shared environment. Bedrooms are personalized and furnished by each tenant, offering flexibility and comfort. Available May 2026.

Read More » Read Less »

Baird & Warner Brady Byrne Agent Cell: 630.220.0037 Email

Property Details

Property Type: Rental - Single Family
Basement: None
Cooling: Central Air
Heating: Natural Gas
Lot Size: 0.09 Acres
Stories: 1.0
Year Built: 2026

Feature Descriptions

Additional rooms: Bedroom 5
Exterior: Brick
Laundry: In Unit
Lot Dimensions: 25x150
Pet Allowed: Additional Pet Rent, Cats OK, Dogs OK, Neutered and/or Declawed Only, Number Limit, Size Limit
Rent Includes: Water
Sewer: Public Sewer
Total Rooms: 8
Township: Lake View
Water: Lake Michigan

Room Information

Bedroom 5: 11X9
Bedroom 2: 11X9
Bedroom 3: 11X9
Bedroom 4: 11X9
Dining Room: COMBO
Kitchen: 12X15
Laundry: 10X7
Living Room: 22X30
Primary Bedroom: 11X9

Schools

School District: District 299

Disclaimer: The accuracy of all information regardless of source, including but not limited to square footage and lot size, is deemed reliable but not guaranteed nor warranted and should be personally verified through personal inspection by and/or with the appropriate professionals.

Location

See details and scored characteristics about this location.

Listing Office: Jennifer Breheny

Listing Office Phone: 773-960-5387



Listing data and photos distributed by MLSGRID
Member Participants (and their affiliated licensees, if applicable) shall indicate on their websites that IDX information is provided exclusively for consumers’ personal non-commercial use, that it may not be used for any purpose other than to identify prospective properties consumers may be interested in purchasing, that the data is deemed reliable but is not guaranteed by MLS GRID, and that the use of the MLS GRID Data may be subject to an end user license agreement prescribed by the Member Participant’s applicable MLS if any and as amended from time to time. MLS GRID may, at its discretion, require use of other disclaimers as necessary to protect Member Participant, and/or their MLS from liability.
Based on information submitted to the MLS GRID. All data is obtained from various sources and may not have been verified by broker or MLS GRID. Supplied Open House Information is subject to change without notice. All information should be independently reviewed and verified for accuracy. Properties may or may not be listed by the office/agent presenting the information.


Login to my Baird & Warner account

Pixel